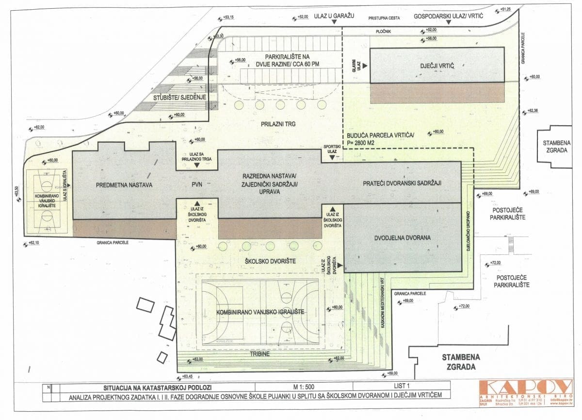
Na ovom mjestu ćemo sagraditi jedan novi vrtić. Danas su objavljeni prvi rezultati upisa u gradskim vrtićima koji su prvi put rađeni kroz sustav e-upisa, kazao je uvodno gradonačelnik Ivica Puljak na konferenciji za medije koja je jutros održana pored OŠ Pujanki povodom objave privremenih upisnih rezultata u vrtićima u vlasništvu Grada Splita.
Novi sustav e-upisa je, kako je rekao, omogućio da oni budu potpuno transparentni. Pozvao je roditelje da prijave bilo koju nepravilnost ukoliko je uoče, a to već sada mogu napraviti u žalbenom roku koji je u tijeku. Prošle godine su izjednačene cijene u privatnim i gradskim vrtićima što će donekle povećati i broj mjesta za upis djece.
- Ove smo godine imali zaprimljeno 1585 prijava u gradske vrtiće, a prvi put su provedeni elektroničkim putem. Zadovoljni smo e-upisima, jer je ovaj postupak puno brži, a dogodine ćemo slično napraviti i u privatnim vrtićima - rekao je Mate Omazić, pročelnik Službe za društvene djelatnosti.
Nakon prvog upisnog kruga odbačeno je 265 prijava, jer nisu ispunjavali uvjete, pa je od 1320 upisano 764 djece. Tako u prvom krugu nije upisano 556 djece, ali tu treba istaknuti, kaže Omazić, da je ostalo 137 mjesta u različitim programima, a 130 djece traže drugi vrtić iako su već upisani u predškolsku ustanovu.
Bilježi se općenito trend rasta prijava u vrtiće, kako u gradskim, tako i u privatnim, a u gradskim vrtićima je trenutačno 130 prijava više u odnosu na prethodnu godinu. U tijeku je žalbeni rok, nakon čega će se koncem srpnja imati točan broj upisane djece ove godine u gradske predškolske ustanove.
- Nažalost, i ove godine će ostati neupisane djece u vrtiće što je sramota za Grad Split. To je rezultat nebrige svih dosadašnjih vlasti koji su umjesto brige za javni interes, vodili računa o nekim drugim interesima. Garantiram da će do kraja mandata biti izgrađeno tri ili četiri nova vrtića – uz ovaj na Pujankama, izgradit će se na Žnjanu, Sirobuji, a trebao bi i u Stobreču i tada ćemo moći upisati svu prijavljenu djecu.
Djeca grada Splita zaslužuju najbolji mogući standard odgoja i obrazovanja uz napomenu da porast broja prijavljene djece ukazuje na činjenicu da mladi roditelji odustaju od 'baka servisa', te to vlasti daje jasnu poruku - kapaciteti se moraju proširiti - zaključio je gradonačelnik Puljak.
Moja reakcija na članak je...





