Krajem veljače su u Banovini objavljeni rezultati projektnog natječaja za izradu idejnog uređenja Hrvojeve ulice i dijela Ulice kralja Tomislava.
Na natječaj koji je trajao od 27. studenoga 2023. do 2. veljače 2024. do 15 sati, a kojeg je proveo Grad Split, u propisanom roku, pristiglo je osam radova, a nakon provedenog natječaja u atriju Banovine bila je otvorena izložba natječajnih radova koja se u radnom vremenu Gradske uprave mogla razgledati narednih tjedan dana, a prikazivala je planove budućih radova.
Prvu nagradu su jednoglasno na 5. sjednici održanoj 19. veljače osvojili autori: Maja Milutin, Antonija Dominović, Helena Mlakar, Iva Sladoljev-Jolić, Martin Bužančić, Circinus d.o.o, a radove su ocjenjivali Ivo Vojnović, Bojan Ivošević, Zrinka Radunić, Hrvoje Bartulović i Jasna Jerkov.
No, i ovaj natječaj nije prošao bez kritike. Osim kritika javnosti, koje su gotovo pa i očekivane kada je u pitanju kakva promjena, u komentaru objavljenom na Dalmaciji Danas krajem veljače, poznata splitska arhitektica iz Arhitektonskog kolektiva Mariana Bucat podijelila je svoje osobno mišljenje.
KOMENTAR Uređenje Hrvojeve: Političarima je dopušteno maštati!
Tri su glavne kritike: da natječaj nije pravilno proveden, ponovna djelomična izgradnja dijela zidova povijesne (antičke) kule neposredno istočno od Mletačkog prolaza, te neetičan pristup zbog uklanjanja nagrađivane realizacije projekta arhitektice Ane Šverko.
Kako bi čuli i drugu stranu priče, otišli smo i do nagrađenih arhitekata koji su osvojili na natječaju te smo o svemu popričali s Antonijom Dominović i Majom Milutin.
"Dosta projekata koje radimo, radimo unutar konzervatorskih zona, a osim zaštićenih cjelina, zanimljivi su nam gradski prostori. Zanimao nas je taj potez i bili smo inspirirani tim zadatkom, koji nas je odmah zainteresirao", kazala nam je Antonija Dominović.
Kao odgovor na kritiku o slaboj izlaznosti na natječaj, rekle su: "Izlaznost na natječaje ovisi o tome koji je natječaj, i načelno nije velika. Primjerice, nedavno je proveden natječaj za izradu urbanističko – arhitektonskog rješenja uređenja kulturno povijesne cjeline Solina i Travarice u Trogiru na koji se prijavilo deset radova, a prije toga na natječaj za izradu arhitektonsko – urbanističkog rješenja uređenja Sutikle u Podgori dospjelo je devet radova. Ovisi više o zadatku, pogotovo ako ne uključuje samo arhitekturu zgrade. To bude dosta raznoliko: od pet, šest radova koji se prijave do trideset."
Odgovor na glavne kritike
Kritizirana je i činjenica što se rješenje neće realizirati temeljem građevinske dozvole, već prema Pravilniku o jednostavnim i drugim građevinama i radovima.
"To su stvari koje će se rješavati na onaj način kako bude potrebno, ovisno o zahvatima koje bude tražio projektni zadatak. Natječaj je konceptualno rješenje, te se sada on dalje razrađuje ovisno o zahtjevima investitora i struke - u ovom slučaju Konzervatorskog odjela u Splitu", kazala je Antonija.
"Ovo je naša vizija te ovo konceptualno rješenje naposljetku ne mora izgledati točno tako. Konačno rješenje će se definirati kroz daljnju razradu. Hoće li se raditi prema Pravilniku o jednostavnim i drugim građevinama i radovima ili ići na proces ishođenja građevinske dozvole što je, naposljetku, skoro ista procedura. Dozvola jest korak dalje od Pravilnika, no mi i dalje moramo ishoditi sve Posebne uvjete javnopravnih tijela. Ništa se ne pokušava napraviti drugačije - idemo na onu proceduru koju bude zahtijevao zadatak", dodaje.
"Od natječajnog rješenja tek sada treba, sukladno smjernicama svih javnopravnih tijela, izraditi idejno rješenje, a kasnije glavni i izvedbeni projekt. Svi ti detalji će se razrađivati", kaže Maja.
Što se tiče pitanja obnova kula, kažu da su kroz tezu restauracije pošli od jedinstva dijelova i cjeline u prezentaciji Dioklecijanove palače na način kao što se restaurira slika ili kip koji nakon restauracije redovito budu retuširani na dijelovima koji nedostaju ali na stručnjaku raspoznatljiv način.
"Upotreba sličnog ili istog materijala nije falsificiranje nego metoda koja je u arheološkim prezentacijama posve uobičajena. Ako je dozvoljeno u malim stvarima uzimati velike primjere dovoljno je pogledati Partenon Atenske akropole koji se upravo restaurira ili neki od arheoloških nacionalnih lokaliteta u kojem se restauracija dijelova provodi kako bi se očuvao spomenik od propadanja. Jedan od primjera velikih projekata su Stonske zidine, Zadarski Forum te centralna sala Dioklecijanovih podruma koja je do nedavno bila bez središnjih svodova", kazala je Antonija.
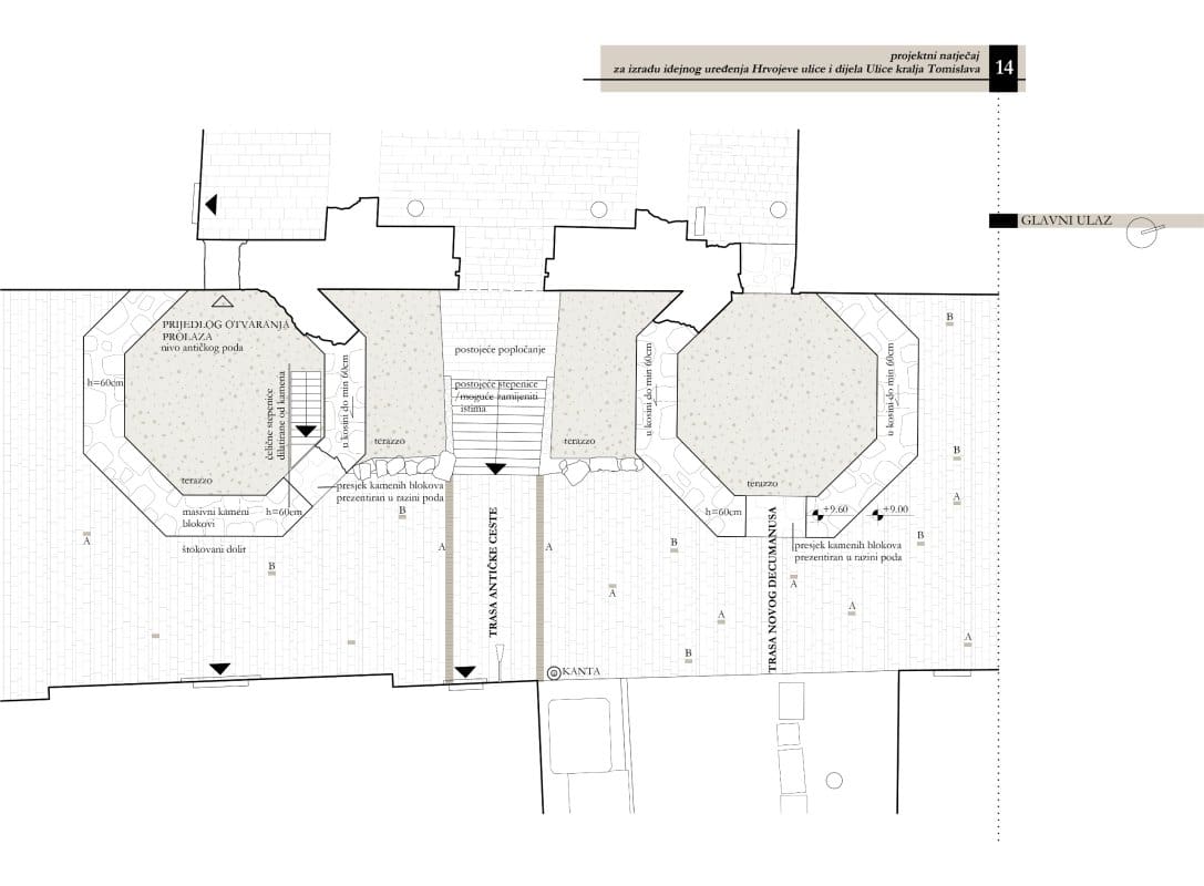
"Mi imamo kompleksnu situaciju. Iščitali smo da je glavna tema natječaja, uz Konzervatorske smjernice i uvjete, bila prezentacija kula: dvije osmerokutne i dvije četverokutne. Tu je sada nastala jedna heterogenost, jer je u trenutnom zatečenom stanju sjeverna pravokutna kula jedina upuštena na razinu antičkog poda, a južna četverokutna kula je prezentirana u razini partera današnje ulice. Natječajnim zadatkom je predviđeno da se na mjestu južne kule otvara prolaz za podrume što znači upuštanje kule na jednak način kao kod spomenute sjeverne. Dvije osmerokutne kule su dijelom već prezentirane tako da su djelomično izdignute u svom gabaritu", kaže Maja.
"Temeljem te četiri točke postavlja se pitanje kako ih ujednačiti. Najčišće nam je djelovalo da sve četiri kule obradimo i prezentiramo na jednak način", dodaje Maja.
"Našim idejnim rješenjem valoriziramo nešto što je bilo prije nas kroz arheološku prezentaciju, te se svojom suvremenom arhitektonskom intervencijom ostajemo na razini partera kroz popločanje i urbanu opremu i svojim rješenjem ne pretvaramo ulicu u nešto treće već zadržavamo njen postojeći kontekst", dodaje Antonija.
"Našim rješenjem ne pretvaramo ulicu u nešto treće"
"Što se tiče samog rješavanja oblikovanja i funkionalnosti gradske ulice, imale smo u vidu iznimnu vrijednost spomenika koji je dio gradskog prostora. Nismo u fokus htjele stavljali vlastitu kreaciju postojeće vrijednosti grada koji je na listi svjetske baštine", odgovara Antonija, ulazeći u detalje ideje projekta.
Vrijednosti grada o kojoj govori upravo je sačuvana palača iz 4. stoljeća, jedinstvena u svijetu po sačuvanosti, kao i istočni zid u dužini od 180 metara koji je praktično u potpunoj elevaciji sačuvan te predstavlja sam po sebi fenomen za svjetsku baštinu, a njegova restauracija je zasebni projekt. Naglašava da su im podloga za projektiranje bile smjernice Konzervatorskog odjela i restauraciju zida, na što se onda naslanjaju svojim projektom.
Dodaju da je njihovo rješenje stoga valoriziralo prezentaciju istočnog zida Dioklecijanove palače koja je započela čišćenjem niza zgrada koje su se na njen zid naslanjale s jedne strane i druge strane oblikovanjem arheološke prezentacije onih izgubljenih dijelova palače do razine ulice tako da se obnove samo oni nesumnjivo utvrđeni elementi i to u onoj mjeri koja bi osigurala laku čitljivost izvornog izgleda palače.
"Nismo se služili metodom kontrasta upotrebljavajući suvremene materijale jer je to anakrona metoda koja nije polučila kvalitetnim rezultatima u svjetskim primjerima i koja često dovodi u iskušenje onog tko interpretira djelo da mu se nametne promovirajući vlastitu kreativnost na vrlo čestu štetu samog spomenika", objašnjava Antonija.
Njihova ideja nije bila maknuti kulu, već su uzimali Hrvojevu ulicu kao konceptualno cjelovito rješenje popločanja.
"Mi smo imali pristup: u redu, tu je palača i tu je Hrvojeva ulica", dodaje.
"Ulica mora služiti građanima Splita"
Sjevernu oktogonalnu kulu nisu upuštale na izvornu antičku razinu kao ostale kule zbog toga što se na tom prostoru već oformila nova pješačka trasa - koju nazivaju "novim dekumanusom", te im je bilo važno zadržati taj koridor.
Meta kritika bilo je i njihovo rješenje ostavlja prostor uza zid Palače slobodnim što posljedično ostavlja mogućnost da se opet napuni šatorima.
"Cijeli taj potez Hrvojeve ulice povijesno je bio namijenjen trgovini. Mi ne namećemo da tu moraju biti štandovi. Ulica mora služiti građanima Splita", naglašavaju.
"Važno je naglasiti da Split nije upisan na listu svjetske baštine kao palača, već kao povijesna jezgra Splita s Dioklecijanovom palačom. Prostor pazara s toga je jednako dio svjetske baštine — kao i arhitektura kasnog carstva. Sukladno navedenom, naš pristup bio je skrupulozan ne samo prema istočnom pročelju palače nego i prema Hrvojevoj ulici koja je dio splitskog pazara. Naš zadatak je bio urediti prostor Hrvojeve ulice tako da tom fenomenu ne konkuriramo, te da našim rješenjem ne pretvaramo ulicu u nešto treće. Ulica nije spomenik, nego je živa ulica koja se koristi na način na koji se do sada koristila", kaže Antonija.
"Nije dovoljno poznato da je pazar upisan na listu svjetske baštine u sklopu nematerijalne nominacije nekoliko zemalja pod nazivom "Mediteranska prehrana". To u svojoj suštini znači način života u kojem trgovanje pod vedrim nebom u povijesnim krajolicima predstavlja fenomen od iznimne univerzalne vrijednosti", dodaje.
"Ovom interpretacijom htjeli smo postići s jedne strane jasnoću u percipiranju arhitekture Dioklecijanove palače na način koji je potpuno autentičan i znanstveno utemeljen s jedne strane ali ujedno poštujući pazar kao fenomen koji se ponovno prostire sve do zidina palače. Tu ostavljamo mogućnost stvaranja režima korištenja koji ne bi bio u koliziji s prezentacijom spomenika ali bi omogućio život u jezgri upravo onako kako predviđa nominacijski dokument za upis gradske jezgre na listu svjetske baštine", kažu.
"Split je živi grad u kojem treba sačuvati svakodnevicu"
"Split nije Salona, nije samo turistička atrakcija poput Pompeja ili nekog drugog velikog lokaliteta. Split je živi grad u kojem treba sačuvati svakodnevicu i stvoriti balans između prezentacije spomenika i života koji je taj spomenik sačuvao", kažu.
Nije poanta sačuvati li ne sačuvati određeni element, kažu, jer o tome odlučuje - struka. Građanima je najvažnije sačuvati sve onako kako su to dosada koristili i ne mijenjati režim korištenja, što naglašavaju da ostaje moguće njihovim projektom.
"Naša ideja je da u malim prostorima između prezentiranih kula ponovno bukne život mediteranskog trgovanja u vremenskim terminima nakon kojih bi prednost pripala arhitektonskoj prezentaciji iznimno vrijedne kasnoantičke palače. Svi elementi našeg projekta prilagođeni su polivalentnom korištenju prostora, konačno oblikovanje bit će svakako predmet detaljne rasprave s Gradom i stručnim nadležnim tijelima čije smo sugestije spremni prihvatiti", dodaje Antonija.
"Vjerujemo da će ovakav pristup spriječiti odumiranje palače i pretvoriti ga ponovno u atrakciju grada koji može spojiti velike uzore svjetske arhitekture i milenijsko trajanje života sa svim njegovim licima koji se smatraju mediteranskim duhom", zaključuju.
Tu kažu da je ideja prostor daje mogućnost zadržavanja te hlad u ljetnim vremenima, a ostavlja mogućnost za ono što u tom trenutku gradu bude potrebno, te da taj koridor smiruje, a dovoljno je udaljen da se može sagledati zid palače.
U ljetnom periodu, drvored stvara određenu sjenu kada se koristi za sjedenje ili trgovinu. U zimskim vremenima, kroz krošnje se stvara vidljiva vizura zidova palače, jer je drvored dovoljno udaljen da ne smeta u prezentaciji.
Što je zapravo njihov projekt?
"Naš projekt svodi se na mirno popločanje i urbanu opremu. Što se tiče popločanja, odabrali smo prirodni kamen u boji koja neće dati prevelik kontrast u odnosu na zid palače."
"Tema nam je bila hijerarhijski pristupiti rješavanju Hrvojeve, pa nakon prezentacije povijesnih slojeva imamo parterno uređenje, popločanje i prostornu organizaciju", kažu.
Hrvojeva ulica se u popločanju tretira unificirano, kao jedinstvena površina istog materijala i ritma, čija jednostavnost i čistoća korespondira s okolnim prostorom, ali mu se ne nameće. Različite funkcionalne zone i varijacije korištenja partera ne uvjetuju njegovo vizualno oblikovanje, već se cijela ulica doživljava kao jedno tijelo. Planirano popločanje su kamene ploče debljine 10cm na armirano-betonskoj podlozi, s obzirom na nužni prolaz dostavnih vozila.
Osnovni raster su trake širine 15cm i 30cm, postavljene u kraćem smjeru ulice u nepravilnom ritmu, tvoreći modul kojim se izbjegava dojam repetitivnosti , te se situacija 'omekšava' oku, istovremeno dobivajući dinamiku koja smiruje. Uvodi se i dodatni element, suptilni moment koji prisutnošću definira podno platno. Zamišljeno je kao kamena ploča druge obrade, čime se stvara dinamika u popločanju. Također je i rasvjetno tijelo, da imaju ambijentalnu rasvjetu, a može biti i polivalentni modul koji se može koristiti za što god tom potezu bude trebalo.
"To je naša ideja za parter, i takvim smo se popločanjem referirali na stare rimske ceste koje su se - dok nije bilo rasvjete - koristili svjetlucavim bijelim kamenčićima, kojeg su nazivali Mjesečev kamen, koji bi uz pomoć Mjeseca po noći osvjetlavao put", objašnjavaju.
"Bila je ideja da svu javnu urbanu opremu spustimo na razinu poda. To su klupe, koševi za smeće i rasvjetna tijela. Na suprotnoj strani od zidina palače nalaze se rasvjetna tijela na fasadi, kako se trenutno nalaze, te ćemo kroz razradu projekta vidjeti može li se to. Držale smo se onoga što je već postavljeno.”
Svi radovi provodili su i temu vode, koja je u njihovom projektu na dva mjesta: na samom ulazu kao česma, a na južnom dijelu kao česma fontana i koja će služiti Pazaru. Tako prestaje biti samo dekorativni element već ima svoju svrhu.
Prepoznat rad od strane kolega
Kažu, dosta kolega prepoznali su njihov rad kao zreo projekt i dobar pristup.
Što se tiče samog žirija koji je izabran od strane raspisivača natječaja, to su sve jako cijenjeni ljudi iz područja struke.
"Mislimo da je naš projekt jako zreo i stojimo iza njega. Mi smo s radom zadovoljne. Iza svakog poteza postoji promišljena odluka", čvrsto zaključuju.



