Građani Kaštel Lukšića dobit će pješački nathodnik preko državne ceste D8 i to nakon što su poslovi gradnje zaustavljeni još 2020. godine kada su se radili nathodnici u Gomilici i Starome. Hrvatske su ceste odabrale austrijski građevinski div Strabag za izgradnju objekta vrijednog 731.930 eura, a radovi bi trebali početi nakon isteka roka za žalbe.
Strabag je bio jeftiniji od konkurencije, jer se na natječaj, osim njih, javio samo samoborski MAR koji je ponudio je 833.156 eura, što je stotinjak tisuća eura skuplje od Austrijanaca, javlja portal grada Kaštela.
Siguran prijelaz
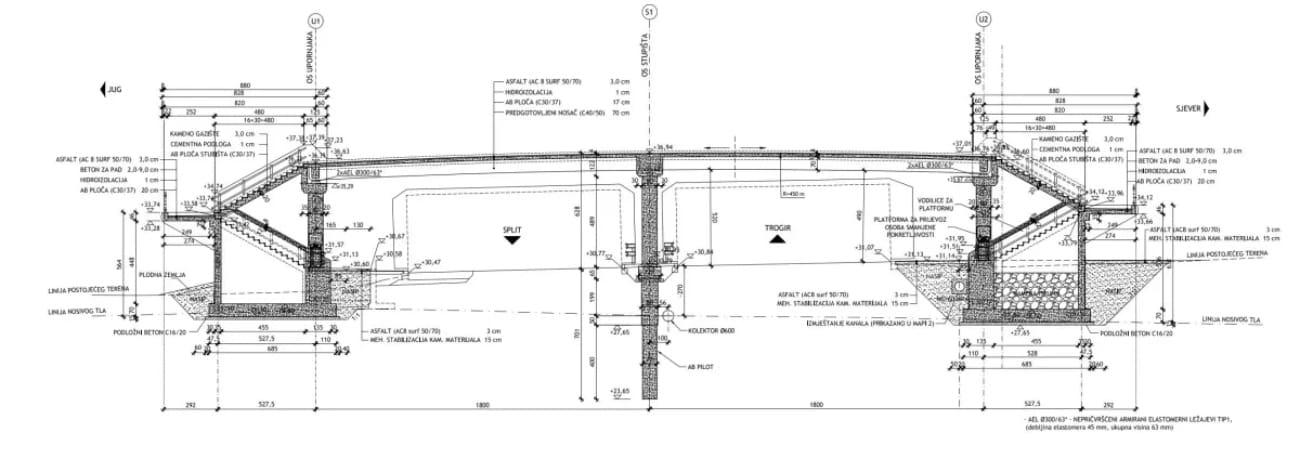
Nathodnik će omogućiti siguran prijelaz preko jedne od najprometnije cesta u Dalmaciji jer se prosječan dnevni promet na D8 vrti oko 25.000 vozila. Građevina će biti dugačka 52 metra s dva raspona od po 18 metara i središnjim stupom u osi ceste.
Pješački koridor širine 2,54 metra bit će zaštićen čeličnom ogradom i žičanom mrežom, a posebnost je električna platforma za osobe smanjene pokretljivosti koja će se podizati duž bočnih rampi.
Tijekom gradnje bit će uvedena privremena regulacija prometa jer će radovi na središnjem stupu zahtijevati zauzimanje prometnog traka uz razdjelni pojas.
Projekt je bio u zastoju od 2021. godine kada je građevinska dozvola poništena nakon žalbe vlasnika zemljišta. Ministarstvo prostornog uređenja i graditeljstva tada je vratilo predmet na ponovni postupak.
Rok za izgradnju je šest mjeseci od uvođenja u posao. Dva druga pješačka nathodnika na D8, u Gomilici i Starom, dovršena su 2021. godine, a sada će i Lukšić napokon dobiti svoj.




