Gradnja nathodnika u Kaštel Lukšiću ponovno se aktualizirala i to nakon gotovo pet godina. Radovi na nathodniku koji se trebao graditi još 2020 su već na samom početku zaustavljeni jer je građevinska dozvola poništena nakon žalbe vlasnika zemljišta. Ministarstvo prostornog uređenja i graditeljstva tada je vratilo predmet na ponovni postupak izdavanja građevinske dozvole. A kako sada stvari stoje, stvoreni su uvjeti za njegovu gradnju, piše Portal.hr.
Hrvatske ceste pokrenule su natječaj za izgradnju pješačkog nathodnika preko državne ceste D8 u Kaštel Lukšiću, a projekt vrijedan 700.000 eura trebao bi se realizirati u šest mjeseci. Natječaj je trenutno u fazi prethodnog savjetovanja, nakon čega će se i formalno pristupiti pronalasku najpovoljnijeg izvođača radova.

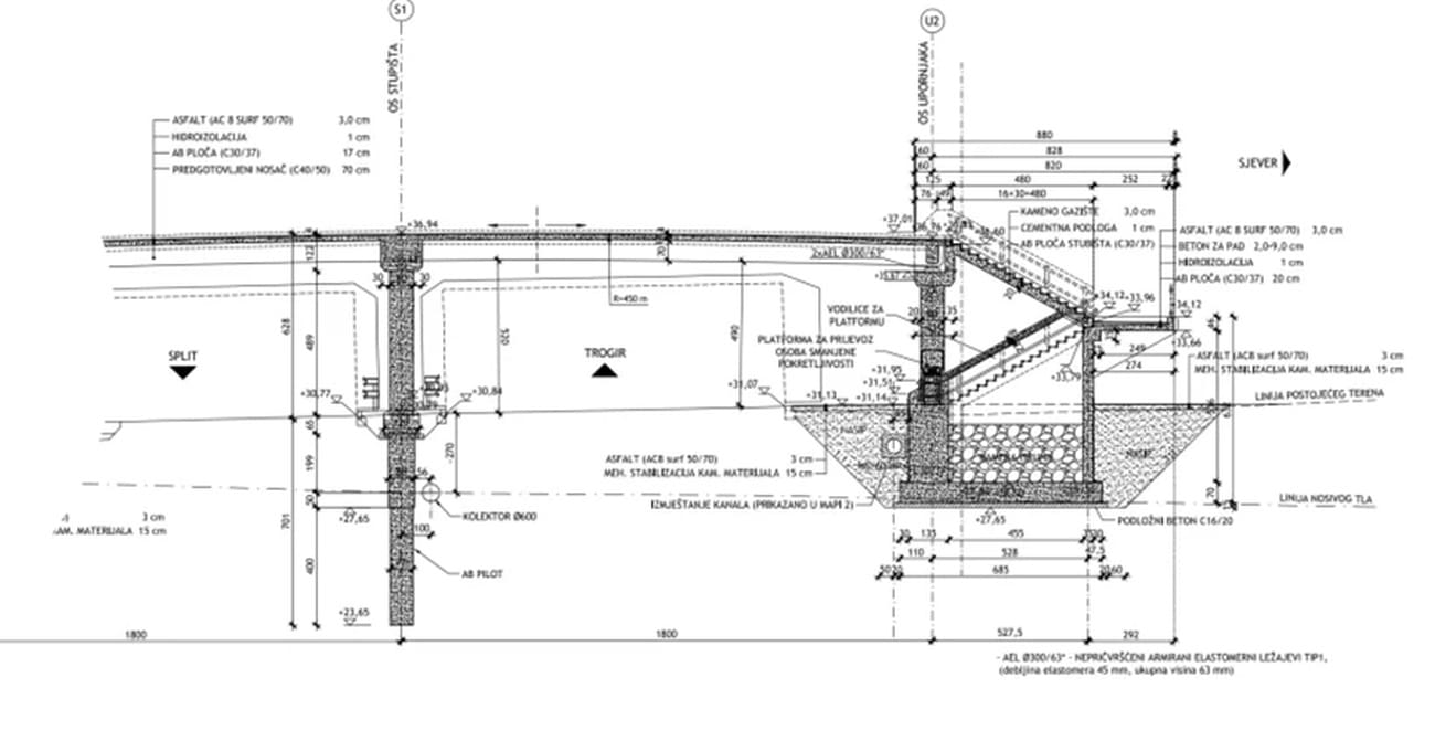
Nathodnik će se protezati 52 metra preko magistrale između Kaštel Gomilice i Kaštel Staroga, s dva raspona od po 18 metara. Građevina će imati središnji stup postavljen u osi ceste, s pješačkim koridorom širine 2,54 metra zaštićenim čeličnom ogradom visine 1,1 metar i žičanom mrežom visine dva metra.
Nathodnik će biti opremljen električnom platformom za osobe smanjene pokretljivosti. Mehanizam će se podizati i spuštati duž bočnih pristupnih rampi.
Nakon odabira izvođača, građevina bi trebala biti gotova u roku od šest mjeseci. Radove financiraju Hrvatske ceste.





