Zajednica gradova i općina koju čine Ploče, Vrgorac i Gradac potpisali su sporazum s Fakultetom građevinarstva, arhitekture i geodezije iz Splita. Svrha Sporazuma je ujedinjavanje raspoloživih ljudskih i materijalnih resursa, znanja i aktivnosti na realizaciju projektiranja i izgradnje obiteljske kuće za stanovanje jedne obitelji na potresom pogođenom području Sisačko-moslavačke županije.
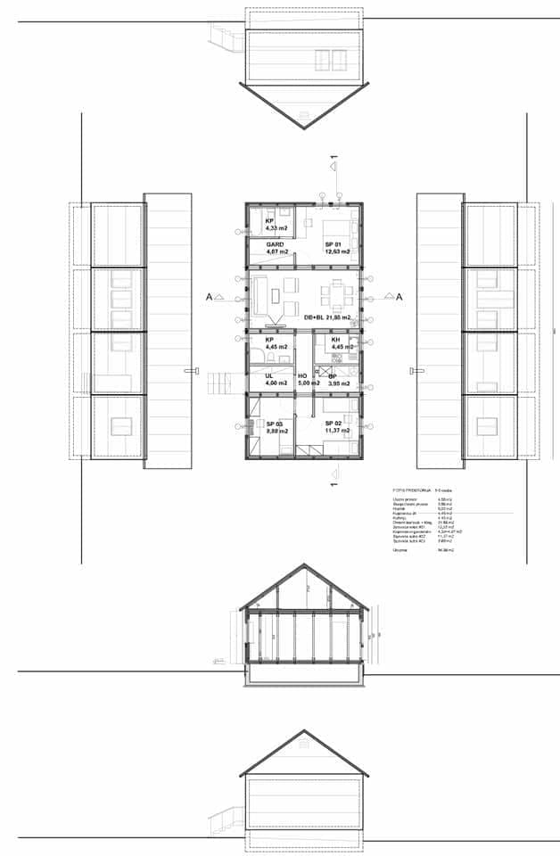
Fakultet će izraditi projektno-tehničku dokumentaciju potrebnu za ishođenje akata za građenje i izradu objekta za stanovanje višečlane obitelji u skladu s važećom regulativom. To će odraditi bez naknade. Riječ je o montažnom objektu do 85 kvadratnih metara. Projektna dokumentacija je već u visokoj fazi gotovosti. Predviđa se modularna montažna gradnja.

- Troškove izgradnje i montaže podijelit će gradovi Ploče i Vrgorac i općina Gradac. Svi smo otvorili posebne podračune na koje možete uplatiti donatorska sredstva. Također u procesu izgradnje želimo uključiti što veći broj naših obrtnika i poduzetnike.
Zaista mi je drago što ćemo na ovom humanom projektu udružiti znanje naše akademske zajednice, građane koji su voljni pomoći, naše poduzetnike i obrtnike. Sve ljude dobre volje koji su spremni pomoći jednoj obitelji na potresom pogođenom području - kazao je gradonačelnik Vrgorca, Ante Pranić.





