Nećemo vam zamjeriti ako niste znali, ali posljednje dvije godine Zoološki vrt na Marjanu je otvoren posjetiteljima. Ta činjenica možda nije dovoljno poznata široj javnosti jer je splitski ZOO četiri godine bio zatvoren za javnost, a i prije te 2014. godine se odvijala prava “demontaža” na vrhu Marjana – divlje životinje koje su generacije Splićana i njihovih gostiju odlazile gledati, tražile su novi dom, zbrinjavalo ih se po Hrvatskoj, ali i šire, dok su objekti i cijeli prostor (gotovo) bili osuđeni na propast.
Unatoč tome što je ZOO na Marjanu imao svu potrebnu dokumentaciju, što su bili usklađeni s rješenjima nadležnog ministarstva, a nastambe za divlje i domaće životinje su bile adekvatne propisima, naglasio nam je ravnatelj Prirodoslovnog muzeja i zoološkog vrta Nediljko Ževrnja, tadašnji i aktualni. No, politička odluka je bila drugačija. E da bi svih tih godina jedna ekipa profesionalaca i entuzijasta ipak održavala na životu prostor na Marjanu, unatoč manjku sredstava i volje za promjenom na bolje mjerodavnih. A od 2018. godine je i takav ZOO vrt, uglavnom s domaćim životinjama, izazivao samo pozitivne komentare posjetitelja. Jednostavno, promijenila se paradigma, sada je naglasak na interakciji gostiju i životinja, tradicijskih, autohtonih...
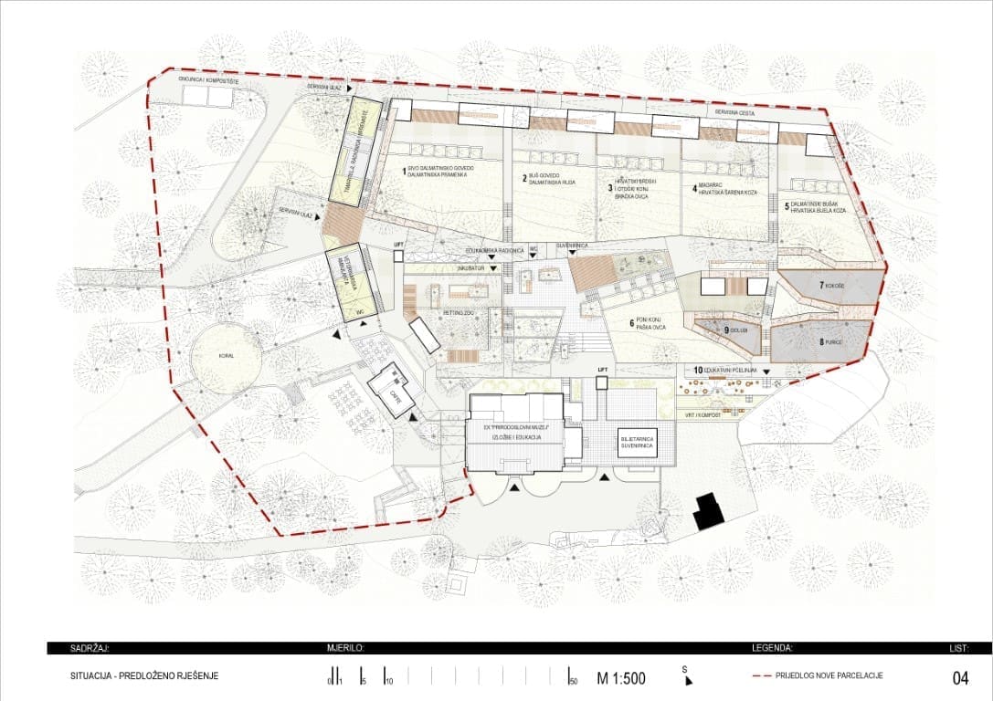
Edukacijski centar s tradicijskim i izvornim pasminama
- Knjiga dojmova je puna pozitivnih, prekrasnih komentara. Uostalom, dovoljno je vidjeti djecu koja ponekad ne žele izaći iz prostora gdje su kunići i po tri-četiri sata, toliko budu zaigrana. U ove dvije godine, posebno prošlog ljeta, imamo stvarno dosta turista koji dolaze i usred ljetne žege te su oduševljeni jednom drugačijom vrstom kontakta sa životinjama. - zadovoljan je povratnim reakcijama posjetitelja naš sugovornik, zbog kojih su i aktivno krenuli u realizaciju jednog posebnog projekta.
Naime, pred ulazom stoji pano s idejnim projektom ZOO-a kao “edukacijskog centra s tradicijskim i izvornim pasminama” koji bi, ako bude sreće i razuma, ponovno mogao izdignuti splitski ZOO iz pepela poput Feniksa.
- Na temelju idejnog rješenja kojeg je izradila ga je prof. Katja Marasović, uz podršku arhitektice Ree Vidović, napravljenog početkom godine na osnovi prijedloga prof. Mate Šantića, prof. Mirka Ruščića i dr. Frane Strikića, koji su cijeli koncept osmislili još 2014. godine, imamo idejni projekt za glavnu zgradu, jednu pomoćnu zgradu te uređenje vanjskog prostora. To je tek jedna od faza prema konačnom uređenju, jer je kompletna projektna dokumentacija znatno složenija te je tek treba izraditi. No, osnovu imamo, prezentirali smo je na sastanku s gradonačelnikom i njegovim suradnicima gdje smo naišli na odličan prijem, prihvatili su našu inicijativu. Samo ova faza izrade projektne dokumentacije koštat će preko milijun kuna, to je sigurno, što bi trebali dovršiti u idućih godinu dana. Potom možemo konkurirati za financiranje cijelog projekta iz EU fondova, a vrijednost radova koji bi po mojim nadanjima mogli krenuti za jedno dvije godine teško se i usuditi procijeniti... - optimističan je, a istovremeno i oprezan, ravnatelj Ževrnja.
Poseban naglasak u zoološkom vrtu s tradicijskim i izvornim pasminama domaćih životinja je na edukaciji. “Uz rekreacijski dio, posebno nas zanima onaj edukacijski, kao i interakcija posjetitelja sa životinjama, uvijek naravno uz nadzor naših djelatnika. Jer danas djeca često ne znaju odakle dolazi mlijeko, da nije oduvijek u tetrapaku ili kako nastaje med. Plan nam je postaviti iza stakla barem jednu košnicu recimo, gdje će se moći vidjeti nastajanje saća, kako se vrca med, ili kako se proizvodi sir.” - dio je projekta edukacijskog centra na Marjanu. Posjetitelji će vidjeti životinje i pasmine koje su na ovim područjima “od pamtivijeka”, koje su omogućile preživljavanje čovjeka u Dalmaciji...
Razlika tradicijskih od autohtonih pasmina
- Moramo razlikovati pojmove tradicijskih pasmina od izvornih ili autohtonih. Prvi je pojam širi te obuhvaća i one životinje i pasmine čiji se genetski materijal miješao s pasminama s drugih područja, ali su korištene u Dalmaciji. Izvorne ili autohtone pasmine su pak one koje smo nalazili isključivo na ovim područjima. Recimo ovca dalmatinska pramenka, a trenutno je u planu da dobije oznaku izvorne i ovca dubrovačka ruda, koja je za vrijeme Domovinskog rata potpuno nestala s kontinenta već je nešto jedinki sačuvano na otocima pa se sada polako uvodi natrag. Zatim buša govedo, pa dalmatinsko sivo govedo za koje mi kažu dobri poznavatelji da nije izumrlo, da ih se još može pronaći na čemu radimo. Naravno tovar ili magarac, zatim dvije vrste koze – hrvatska šarena i bijela koza – priznate kao izvorne, dvije pasmine golubova,... Tradicijske su pak pasmine dalmatinske tuke, dalmatinske kokoši znane i kao pogrmuša, ali i čvrstog radnog konja veličine poput ponija, poznatog kao dalmatinski bušak. Svim tim životinjama i pasminama je stanište na Marjanu potpuno prirodno, naviknuti su na kamenjar, prilagođeni takvom terenu. - opisuje naš sugovornik životinjski fond budućeg edukacijskog centra. Kako pristupačnost zoološkog vrta nije baš idealna, nametnulo se to pitanje.
- Pristup je jedan od ograničavajućih faktora, no u sklopu projekta “Marjan 2020 - brdo prošlosti, oaza budućnosti” ide se u nabavu ekoloških autobusa koji će prometovati do zoološkog vrta. Mi smo tu jedan od segmenata jer Marjan treba biti dostupniji starijim osobama ili obiteljima s malom djecom, doista treba imati kondicije za doći pješice do zoološkog vrta. A unutar samog prostora vrta imamo visinsku razliku od 20 metara, zbog konfiguracije terena, pa je djelomično neprilagođen teško pokretnim osobama. I taj problem bi se trebao riješiti u sklopu izgradnje cijelog centra. - naglašava ravnatelj Prirodoslovnog muzeja i zoološkog vrta.
Završni cilj, zapravo vraćanje na početak u jednom kružnom procesu (makar bi taj novi početak trebao biti na puno boljim “nogama”), jest otvaranje zoološkog vrta s divljim životinjama (jer sada pa ni u budućem edukacijskom centru nema mjesta lisici recimo, da ne spominjemo vuka, medvjeda ili tigra recimo) na nekoj drugoj lokaciji unutar granica Splita. To je san, priznao nam je ravnatelj Ževrnja da to želi svim srcem. Upravo je on prije nekoliko godina predlagao razna rješenja, lokacije poput Žrnovnice gdje bi se mogao otvoriti “pravi” zoološki vrt kojeg grad poput Splita zaslužuje!




