Strabag je dao cjenovno najpovoljniju ponudu za izvođenje radova na Osnovnoj školi Stobreč, a radi se o dogradnji škole, izgradnji nove sportske dvorane i energetska obnove. Grad Split kao naručitelj predvidio je vrijednost radova od 9,9 milijuna eura, a Strabag bi sve izveo za 8,7 milijuna eura bez PDV-a. Kriterij za odabir je 90 posto cijena, a 10 posto reference.
Elektronsko otvaranje ponuda preko sustava EOJN bilo je jučer u 10 sati i javilo se ukupno pet izvođača: Zajednica ponuditelja TRIBE INŽENJERING D.O.O. iz Zagreba, Lavčević d.d. iz Splita, Strabag d.o.o. iz Zagreba, Inobačka d.o.o. iz Novog Sada i Graditelj svratišta d.o.o. iz Zagreba.

Natječaj je objavljen 27. ožujka u gradskom Službenom listu i u sustavu EOJN-a, a sve ponude su stigle u manje od 24 sata od krajnjeg roka predaje. S tim da je ona Inobačke stigla u zadnjih devet minuta.
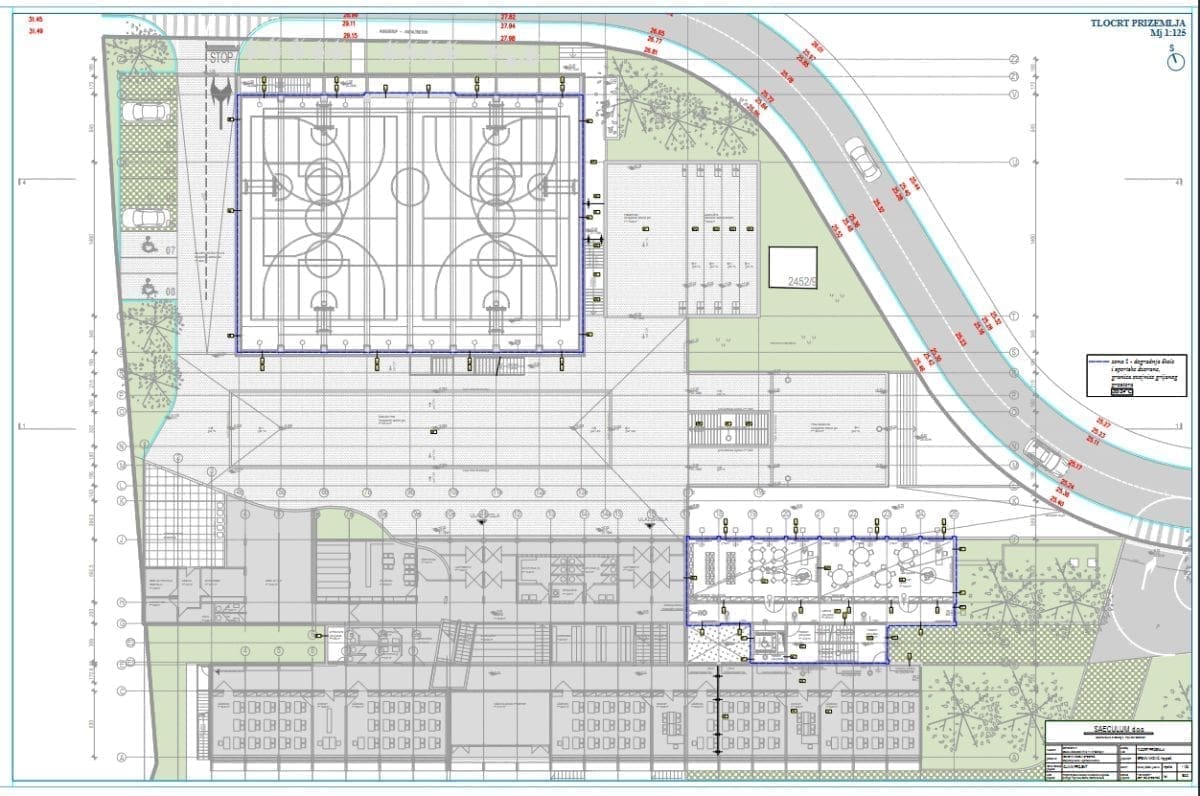
Osnovna škola Stobreč sa svojih 8172 m² nastala je na dijelu strelišta za glinene golubove izgrađenog za potrebe MIS-a 1979. godine. Škola je izgrađena 1993. godine te su u okviru školskog dvorišta zadržane tribine strelišta do kojih se dolazilo s parkinga na sjevernoj strani parcele. Tada je idejnim projektom bila zamišljena realizacija dvorane dimenzija 15 x 30m. Zbog nemogućnosti izmicanja trase ceste dvorana ne može biti smještena prema projektu iz 1992. godine.
Novi program predviđa dvodjelnu školsku dvoranu dimenzija 32 x 24m i dvoranu za korektivnu gimnastiku sa pratećim sadržajima i prostorima. Školska zgrada se dograđuje prema istoku sa dodatnim školskim učionicama i sadržajima. Glavni projektant je arhitekt Marin Kaliterna iz tvrtke Arhitektonski biro Ante Kuzmanić doo.




