Grad Split je putem Elektroničkog oglasnika pokrenuo javnu nabavu za izvođenje radova uređenja trga u Srinjinama na prostoru srušene zgrade tamošnjeg Mjesnog odbora.
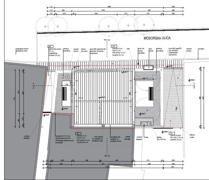
Projektom se planira uređenje trga na dijelu građevinskog područja ovog splitskog naselja ukupne površine 198 metara četvornih. Trg će biti omeđen kolno-pješačkom ulicom sa sjeverozapadne strane, dok će ostale strane graničiti sa susjednim parcelama.
Opći dojam trga bit će jasno formatiran prostor koji predstavlja proširenje ulice, a čija će praznina biti središnje mjesto događanja, dodatno osmišljeno umjetničkom intervencijom.
Cilj je da ovaj prvi uređeni potpuno javni prostor postane prepoznatljivo mjesto koje će doprinijeti identitetu Srinjina kao mjestu između grada i planine, gdje se cijeni društveni život i stvara kvaliteta življenja u prirodnom okruženju.
Procijenjena vrijednost javna nabave je 200.000 eura, a rok za dostavu je 18.7.2024. u 10 sati.






