Prizemlje i prvi kat imaju po 3 stambene jedinice dok se na 2. katu nalaze 2 stambene jedinice.
Prizemlje se sastoji od tri stambene jedinice
Stambena jedinica 1 se sastoji od ulaznog prostora (halla), dnevnog boravka sa kuhinjom i blagovaonicom, dvije spavaće sobe, kupaonice, wc-a i balkona. Neto površina stambene jedinice je 78,90 m2. Stambena jedinica 2 se sastoji od ulaznog prostora (halla), dnevnog boravka sa kuhinjom i blagovaonicom, spavaće sobe, kupaonice i lođe. Neto površina stambene jedinice je 45,10 m2 . Stambena jedinica 3 se sastoji od ulaznog prostora (halla), dnevnog boravka sa kuhinjom i blagovaonicom, dvije spavaće sobe, kupaonice, wc-a i lođe. Neto površina stambene jedinice je 60,50 m2.
I. kat se sastoji od tri stambene jedinice
Stambena jedinica 4 se sastoji od ulaznog prostora (halla), dnevnog boravka sa kuhinjom i blagovaonicom, dvije spavaće sobe, kupaonice, wca i balkona. Neto površina stambene jedinice je 78,90 m2. Stambena jedinica 5 se sastoji od ulaznog prostora (halla), dnevnog boravka sa kuhinjom i blagovaonicom, spavaće sobe, kupaonice i lođe. Neto površina stambene jedinice je 45,10 m2 Stambena jedinica 6 se sastoji od ulaznog prostora (halla), dnevnog boravka sa kuhinjom i blagovaonicom, dvije spavaće sobe, kupaonice, wc-a i lođe. Neto površina stambene jedinice je 60,50 m2.
Na II. katu su planirane dvije stambene jedinice
Stambena jedinica 7 se sastoji od ulaznog prostora (halla), dnevnog boravka sa kuhinjom i blagovaonicom, dvije spavaće sobe, kupaonice, wc-a, lođe, balkona i nenatkrivene terase. Neto površina stambene jedinice je 90,75 m2 . Stambena jedinica 8 se sastoji od ulaznog prostora (halla), dnevnog boravka sa kuhinjom i blagovaonicom, predsoblja, spavaće sobe (sa garderobom), spavaća sobe, kupaonice, wc-a, balkona i lođe. Neto površina stambene jedinice je 60,50 m2.

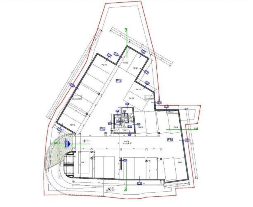
Osim etaža Pituntium će imati i podrum s južnim i zapadnim pristupom.
Kolnički pristup u garažu u podrumskoj etaži je rampom uz južno i zapadno pročelje. Garaža je stubištem i dizalom povezana sa poslovnim prostorima i stambenim jedinicama. U etaži podruma predviđena su 23 garažno parkirna mjesta.
Na etaži suterena su, uz ulazni prostor, predviđeni caffe bar i poslovni prostor (uredi).
Čitavu projektnu dokumentaciju možete pogledati na poveznici.
Sve informacije o cijenama te dogovor oko prezentacije možete dobiti na broj mobitela 095/369 2828.




